网站首页
关于欧亿(中国)
产品世界
新闻资讯
工程案例
售后服务
全国网点
欧亿(中国)
合格证真伪查询
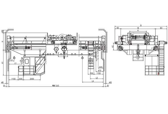
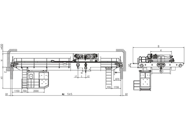
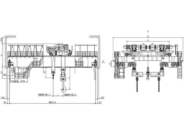
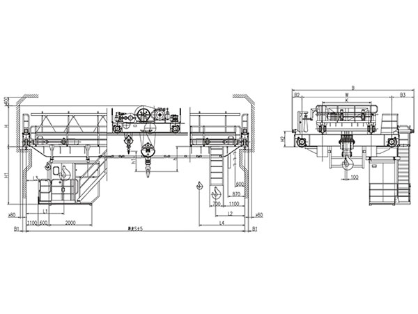
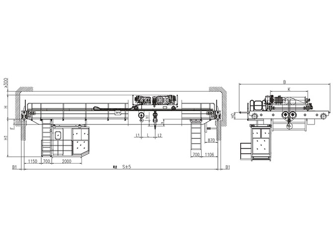
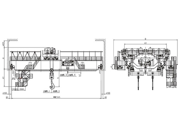
双梁起重机
QDY型16、3.2~20、5t冶…
QDY型32、5~50、10t冶金…
QDY型74、20t冶金起重机…
YZ型100、32~125…
YZ型125、32~140、40t铸…
YZ型140、40t铸造起重机…
YZ型160、40t铸造起重机…
YZ型180、50~240、75t铸…
YZ型280、75~320、80t铸…
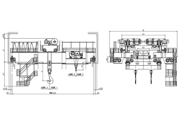
5~10t欧式吊钩桥式起重…
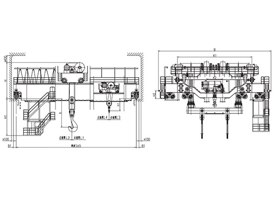
16~20t欧式吊钩桥式起重…
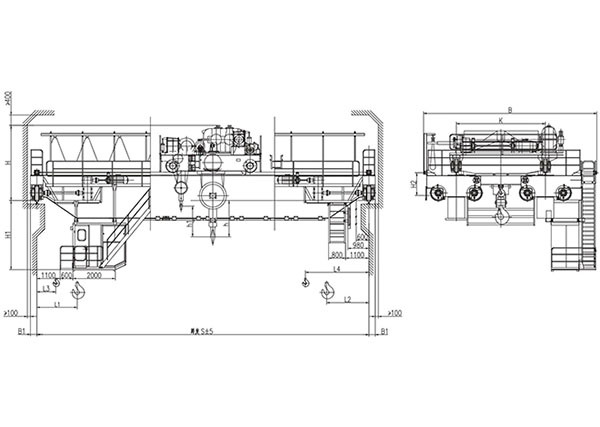
32~50t欧式吊钩桥式起重…
总共 63 条记录 每页 12 条 共 6 页 当前第 3 页
首页
上一页
1
2
3
4
5
6
下一页
尾页
开云官方在线入口
|
WANBO.COM万搏娱乐(集团)科技公司
|
华体网页版
|
乐动游戏官网
|
9游平台
|
三亿平台
|
开云手机登录入口
|
米兰体育
|
球速体育网页版
|